Description

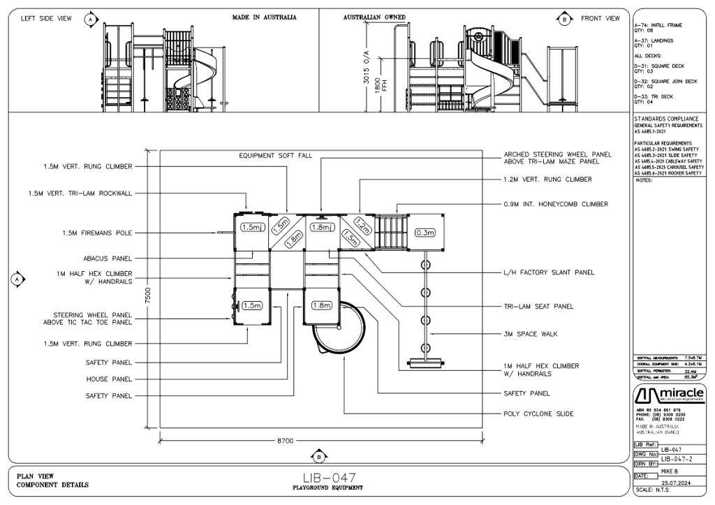
LIB-047 Combination Unit A vibrant, multi-activity playground designed to combine climbing, sliding, and social play in a high-impact layout.

Featuring interconnected platforms, a spiral slide, and integrated swing elements, this playground promotes coordination, strength, and group interaction while delivering strong visual appeal.

PLAY ELEMENTS

  • Inclusive stair and ladder access for all abilities
  • Spiral slide for dynamic and exciting descents
  • Swing set attachment for additional play variety
  • Multi-level interconnected platforms for continuous play flow
  • Inclined climbing ladder for strength and coordination development
  • Vertical ladder access for progressive climbing challenge
  • Interactive panels for sensory and imaginative play
  • Elevated platforms for lookout and social interaction
  • Balance and traversal activities throughout the structure
  • Upper body, lower body and core strength activities throughout
  • Multiple entry and exit points to support continuous play flow

THIS PLAYGROUND DESIGN IS COMPLIANT TO AUSTRALIAN STANDARDS AS4685

CONSTRUCTION

  • Powder-coated galvanised steel uprights, framework and structural components for long-term durability
  • UV-stabilised roto moulded plastic spiral slide for vibrant, fade-resistant performance
  • Heavy-duty steel platforms engineered for strength and stability
  • Reinforced swing and climbing systems designed for high-use environments
  • High-quality HDPE panels and inserts for durability and visual appeal

OPTIONS

All products are fully customisable with a wide range of colours and material finishes available to suit your project vision. Powder coating is available across an extensive colour palette. Structural components can be manufactured from Galvanised Steel, Stainless Steel or Aluminium depending on environmental and performance requirements. Plastic, rope and panel elements are available in multiple colour options to align with branding, theming or site-specific design outcomes.

LIB-047

Product Code: LIB-047
Use Zone Required - 8.7m x 7.5m

Product Enquiry Form

Please fill in the form below and we will get back to you as soon as possible.

TOP Call Now Button