Description

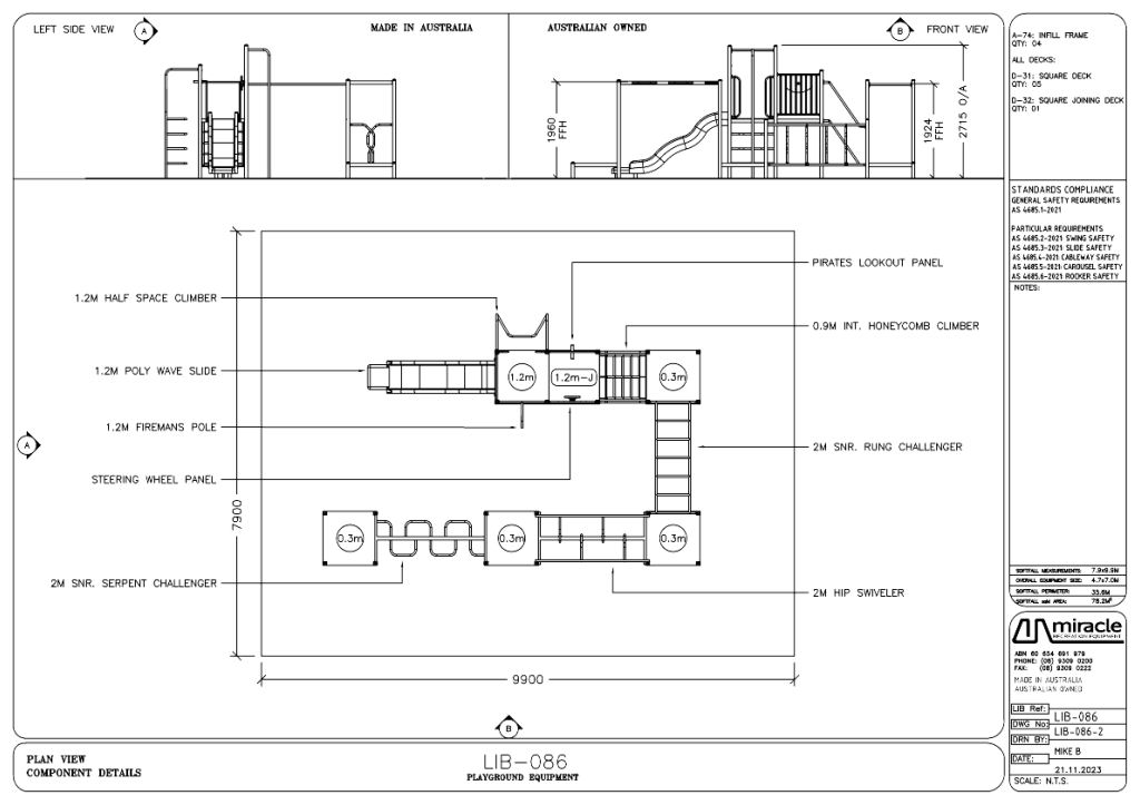
LIB-086 Combination Unit A compact, obstacle-style playground designed to combine climbing, sliding, and strength-based play in a continuous layout.

Featuring interconnected platforms, overhead elements, and an engaging slide, this playground promotes coordination, endurance, and active movement in a space-efficient design.

PLAY ELEMENTS

  • Inclusive stair and ladder access for all abilities
  • Single wave slide for smooth and engaging descents
  • Overhead monkey bars for upper body strength development
  • Hanging traverse elements for coordination and endurance
  • Inclined climbing ramp for strength and coordination development
  • Vertical ladder access for progressive climbing challenge
  • Bridge connection for elevated movement between platforms
  • Balance and traversal activities throughout the structure
  • Upper body, lower body and core strength activities throughout
  • Multiple entry and exit points to support continuous play flow

THIS PLAYGROUND DESIGN IS COMPLIANT TO AUSTRALIAN STANDARDS AS4685

CONSTRUCTION

  • Powder-coated galvanised steel uprights, framework and structural components for long-term durability
  • UV-stabilised roto moulded plastic slide for vibrant, fade-resistant performance
  • Heavy-duty steel platforms engineered for strength and stability
  • Reinforced overhead and climbing systems designed for high-use environments
  • High-quality HDPE panels and inserts for durability and visual appeal

OPTIONS

All products are fully customisable with a wide range of colours and material finishes available to suit your project vision. Powder coating is available across an extensive colour palette. Structural components can be manufactured from Galvanised Steel, Stainless Steel or Aluminium depending on environmental and performance requirements. Plastic, rope and panel elements are available in multiple colour options to align with branding, theming or site-specific design outcomes.

LIB-086

Product Code: LIB-086
Use Zone Required - 9.9m x 7.9m

Product Enquiry Form

Please fill in the form below and we will get back to you as soon as possible.

TOP Call Now Button