Description

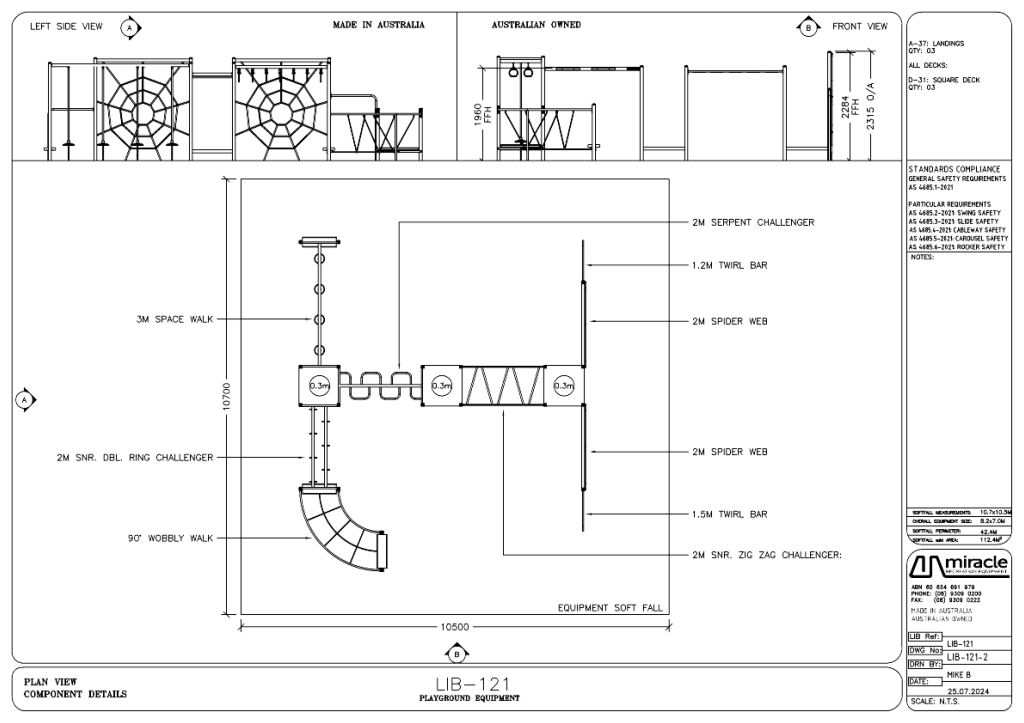
LIB-121 Combination Unit A compact, obstacle-style playground designed to promote strength, coordination, and continuous movement.

Featuring a sequence of climbing nets, overhead challenges, and balance elements, this playground delivers an engaging circuit that builds agility, endurance, and confidence.

PLAY ELEMENTS

  • Inclusive step and ladder access for all abilities
  • Extended overhead monkey bars for upper body strength development
  • Hanging grip elements for coordination and traversal challenge
  • Spider web climbing nets for balance, agility and strength
  • Vertical climbing panels for progressive difficulty
  • Balance bridge for stability and control
  • Stepping and transition platforms for structured movement
  • Open play zones for flexibility and circulation
  • Upper body, lower body and core strength activities throughout
  • Multiple entry and exit points supporting continuous play flow

THIS PLAYGROUND DESIGN IS COMPLIANT TO AUSTRALIAN STANDARDS AS4685

CONSTRUCTION

  • Powder-coated galvanised steel uprights, framework and structural components for long-term durability
  • Heavy-duty steel bars and obstacle elements engineered for high-load performance
  • Reinforced rope systems designed for high-use environments
  • Durable platforms and balance elements built for long-term outdoor use
  • High-quality HDPE panels and inserts for durability and visual appeal

OPTIONS

All products are fully customisable with a wide range of colours and material finishes available to suit your project vision. Powder coating is available across an extensive colour palette. Structural components can be manufactured from Galvanised Steel, Stainless Steel or Aluminium depending on environmental and performance requirements. Rope, panel and structural elements are available in multiple colour options to align with branding, theming or site-specific design outcomes.

LIB-121

Product Code: LIB-121
Use Zone Required - 10.7m x 10.5m

Product Enquiry Form

Please fill in the form below and we will get back to you as soon as possible.

TOP Call Now Button