Description

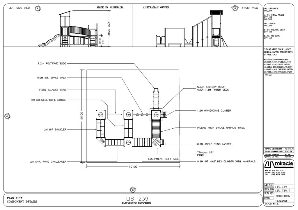
LIB-239 Combination Unit A dynamic, multi-activity playground designed to combine climbing, sliding, and strength-based play in a continuous layout.

Featuring interconnected platforms, varied climbing challenges, and overhead elements, this playground promotes coordination, endurance, and social interaction while maintaining strong play flow.

PLAY ELEMENTS

  • Inclusive stair and ladder access for all abilities
  • Single wave slide for smooth and engaging descents
  • Inclined climbing ramp for strength and coordination development
  • Vertical ladder access for progressive climbing challenge
  • Overhead monkey bars and traverse elements for upper body strength
  • Hanging grip features for coordination and endurance
  • Balance beams and stepping elements for stability and control
  • Bridge connections for elevated movement between platforms
  • Interactive panels for sensory and imaginative play
  • Upper body, lower body and core strength activities throughout
  • Multiple entry and exit points supporting continuous play flow

THIS PLAYGROUND DESIGN IS COMPLIANT TO AUSTRALIAN STANDARDS AS4685

CONSTRUCTION

  • Powder-coated galvanised steel uprights, framework and structural components for long-term durability
  • UV-stabilised roto moulded plastic slide and play features for vibrant, fade-resistant performance
  • Heavy-duty steel platforms engineered for strength and stability
  • Reinforced overhead and climbing systems designed for high-use environments
  • High-quality HDPE panels and inserts for durability and visual appeal

OPTIONS

All products are fully customisable with a wide range of colours and material finishes available to suit your project vision. Powder coating is available across an extensive colour palette. Structural components can be manufactured from Galvanised Steel, Stainless Steel or Aluminium depending on environmental and performance requirements. Plastic, rope and panel elements are available in multiple colour options to align with branding, theming or site-specific design outcomes.

LIB-239

Product Code: LIB-239
Use Zone Required - 10.1m x 10.1m

Product Enquiry Form

Please fill in the form below and we will get back to you as soon as possible.

TOP Call Now Button