Description

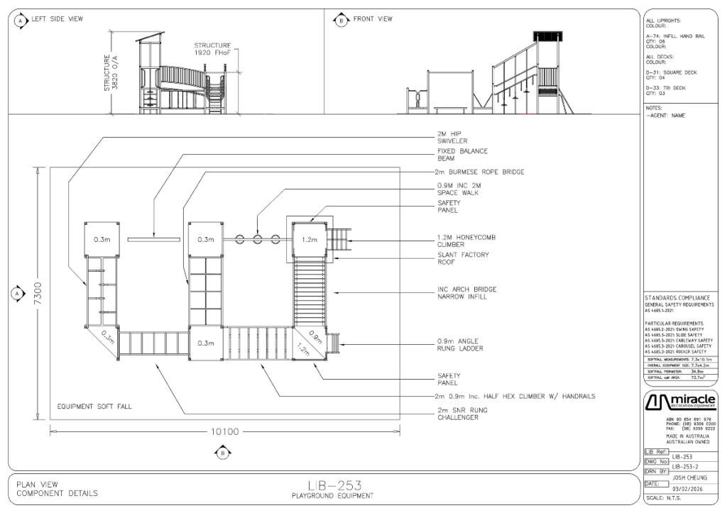
LIB-253 Combination Unit A progressive, obstacle-style playground designed to maximise movement, strength, and continuous play flow.

Featuring interconnected platforms, climbing challenges, and overhead traverse elements, this playground creates a dynamic circuit that promotes agility, coordination, and endurance across a wide range of users.

PLAY ELEMENTS

  • Inclusive stair and ladder access for all abilities
  • Multi-level interconnected platforms for continuous play flow
  • Extended overhead monkey bars and traverse elements for upper body strength
  • Hanging grip and traverse features for coordination and endurance
  • Rope climbing nets for balance, agility and strength development
  • Vertical and inclined climbing challenges for progressive difficulty
  • Bridge connections for elevated movement between structures
  • Balance beams and stepping elements for stability and control
  • Interactive panels for sensory and imaginative play
  • Upper body, lower body and core strength activities throughout
  • Multiple entry and exit points supporting continuous, circuit-style play

THIS PLAYGROUND DESIGN IS COMPLIANT TO AUSTRALIAN STANDARDS AS4685

CONSTRUCTION

  • Powder-coated galvanised steel uprights, framework and structural components for long-term durability
  • Heavy-duty steel bars and obstacle elements engineered for high-load performance
  • Reinforced rope systems designed for intensive, high-use environments
  • Durable platforms and balance elements built for long-term outdoor use
  • High-quality HDPE panels and inserts for durability and visual appeal

OPTIONS

All products are fully customisable with a wide range of colours and material finishes available to suit your project vision. Powder coating is available across an extensive colour palette. Structural components can be manufactured from Galvanised Steel, Stainless Steel or Aluminium depending on environmental and performance requirements. Rope, panel and structural elements are available in multiple colour options to align with branding, theming or site-specific design outcomes

LIB-253 Combination Unit

Product Code: LIB-253 Combination Unit
Use Zone Required - 10.1m x 6.3m

Product Enquiry Form

Please fill in the form below and we will get back to you as soon as possible.

TOP Call Now Button